Projekte - mehr als Referenz
1.000.000 m² entwickelte Fläche sprechen für sich selbst. Wenn wir Ihr Interesse geweckt haben, freuen wir uns auf ein unverbindliches Gespräch mit Ihnen. Unser Know-how und ein rein erfolgsorientiertes Honorar sind gute Gründe für den Kontakt.
Auf grüne Zeiten in der Grundstückswirtschaft!
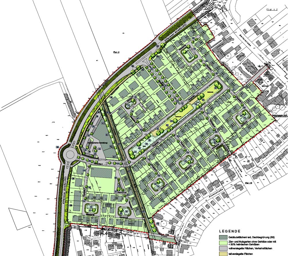
Hürth BP 217 „Efferen-West“
Auf der ca. 13 ha großen Fläche ist die Erstellung von ca. 245 Haus- und Wohneinheiten vorgesehen sowie eine 6-zügige Kita und ein Nahversorger. Der Satzungsbeschluss wurde am 26.09.17 vom Stadtrat gefasst.
Städtebauliches Konzept 2017 [1 MB | PDF ]
Bergisch Gladbach BP 2119 „Am Kalkofen“
Auf einer ca. 15.000 m“ großen Fläche ist die Erstellung von ca. 150 Wohneinheiten sowie ein zur gewerblichen Nutzung vorgesehenes Gebäude vorgesehen, möglicherweise als Hotel. Das Bauleitverfahren wurde eingeleitet.
Städtebaulicher Entwurf [0,5 MB | PDF ]
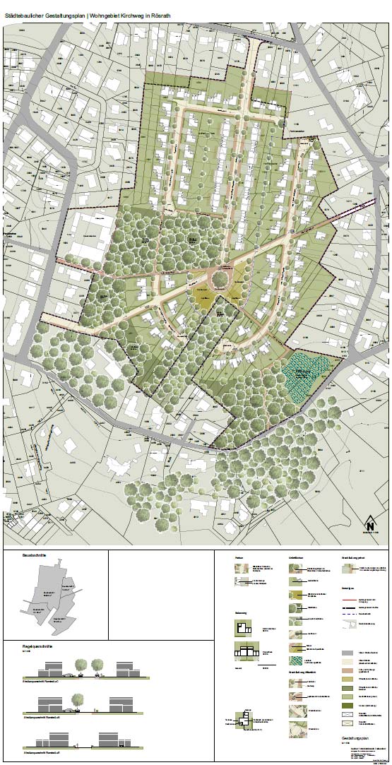
Rösrath-Forsbach BP „Am Kirchweg“
Auf einer ca. 0,8 ha großen Fläche ist in der Sitzung des Planungsausschusses vom 25.09.17 der Aufstellungsbeschluss gefasst worden.
Städtebaulicher Entwurf [1 MB | PDF ]
Brühl, Plangebiet im BP 01.16
Auf einer ca. 8,3 ha großen Fläche sind im städtebaulichen Entwurf
ca. 300 Wohneinheiten, 25 Einzel-, 42 Doppel- und 28 Reihenhäuser dargestellt.
Der Aufstellungsbeschluss wurde vom Ausschuss am 12.11.15 einstimmig gefasst.
Vorentwurf [1 MB | PDF ]
Koelner Stadtanzeiger 2015-11-14 [184 KB | PDF]
Baugrundstücke in Niederkassel-Rheidt
Bebauungsplan 53 RH „Mondorfer Straße &/ Kabelweg“
Auf ursprünglich 18 Flurstücken, mit 53 beteiligten Eigentümern, konnte das städtebauliche Konzept für neuen Wohnraum auf 33.000 m² Netto Baulandfläche umgesetzt werden. Insgesamt werden mehr als 60 Baugrundstücke dort entstehen, 30 davon werden durch die SEG AöR Niederkassel nun vermarktet. Mit der Herstellung der Erschließung wurde im Frühjahr 2015 begonnen.
Vorentwurf [7 MB | PDF ]
B-Plan [2 MB | PDF]
Baugrundstücke in Köln-Lövenich
Auf den ehemals 13 Flurstücken und unter Beteiligung von 68 Eigentümern konnte ein neues Baugebiet mit über 50 Baugrundstücken mit modernen Doppelhäusern von uns geplant, entwickelt und erfolgreich für die Eigentümer vermarktet werden. Die Baumaßnahmen für den Hochbau laufen auf vollen Touren.
Vorentwurf [5,5 MB | PDF ]
B-Plan [301 KB | PDF]
Baugrundstücke in Hürth-Fischenich "An den 4 Höfen"
Dort entstand auf ehemaligen 35 Flurstücken und unter Beteiligung von über 50 Alteigentümern ein Plangebiet von rund 130 Baugrundstücken für überwiegend freistehende Einfamilienhäuser. Die Fertigstellung der Erschließungsanlage wird zurzeit hergestellt. Alle Baugrundstücke waren in dem attraktiven Baugebiet in kurzer Zeit vergriffen.
Baugrundstücke Übersichtsplan [1,9 MB | PDF]
B-Plan [1,3 MB | PDF]
Pressemitteilung "Hürth Spatenstich"
Stilvoll leben in Hürth
In einem neuen Zuhause konnten wir eine einzigartige Mixtur aus eleganter Exklusivität, hochwertiger Ausstattung und 180 m² wohnlicher Behaglichkeit schaffen.
Baugrundstücke in Bergheim-Glessen
Für die 14 Baugrundstücke mit überwiegend freistehenden und individuell geplanten Einfamilienhäusern ist die Fertigstellung der Erschließungsarbeiten abgeschlossen.
Baugrundstücke Übersichtsplan [356 KB | PDF ]
Hürth „Berrenrather Straße Nord“
Hier sind insgesamt 25 Baugrundstücke für Einfamilien- sowie Reihen- und Doppelhäuser in hetrogener Struktur entstanden. Das Projekt ist verkauft und komplett abgeschlossen.
Referenzobjekte & -projekte nennen wir Ihnen gerne auf Anfrage.
Kontakt Anschrift
Baum - Projektentwicklung Wohnen
Ulrich Baum
Mirweilerhof 10
50354 Hürth
Tel.: 0 22 33 - 68 68 70
Fax: 0 22 33 - 68 68 14
post@baum-projektentwicklung-wohnen.de
